
Flat interior design
Flat interior design

Flat interior design
Flat interior design

Kitchen
Kitchen

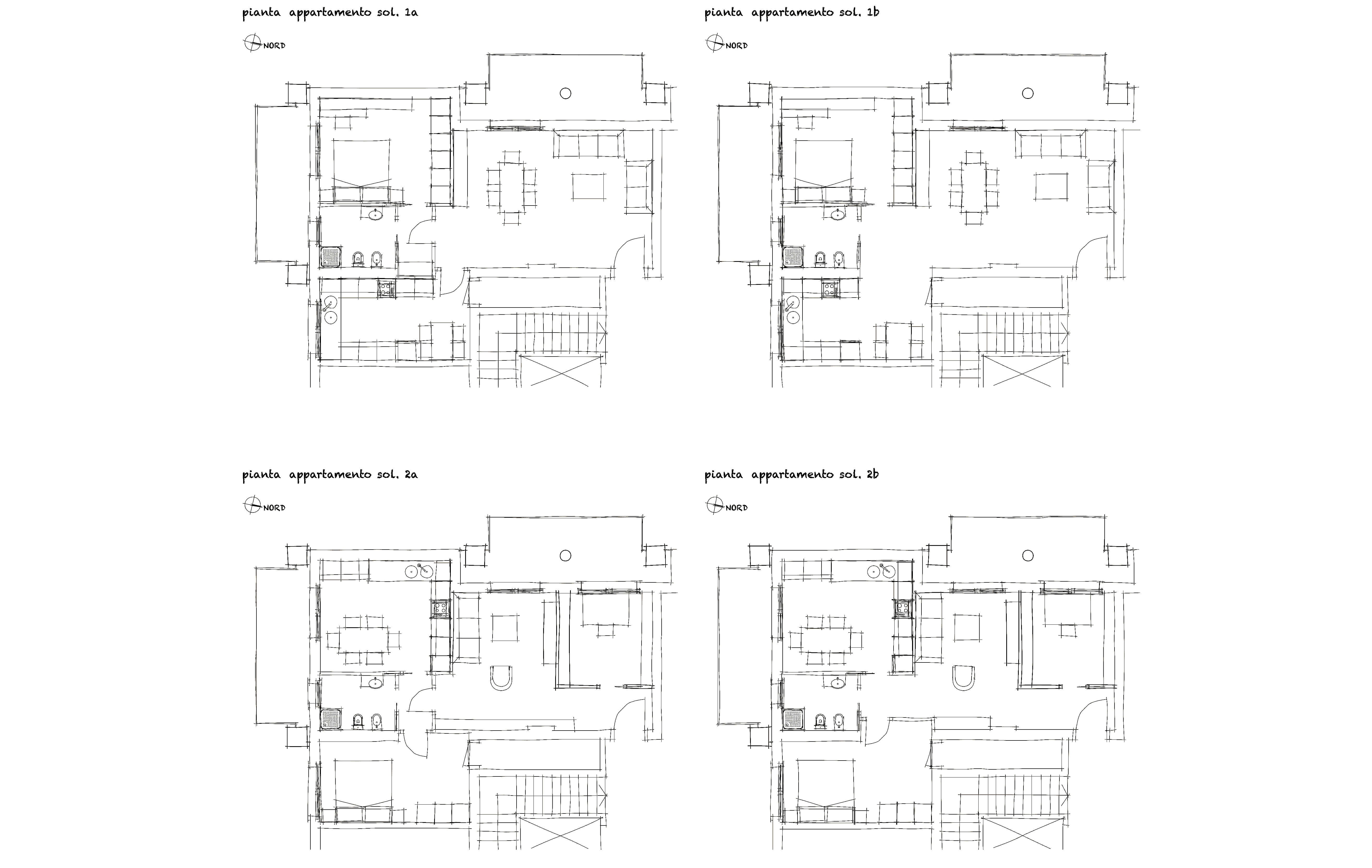
Apartment Floor Plan
Apartment Floor Plan

Apartment Mapping
Apartment Mapping

Apartment Long Section
Apartment Long Section

Apartment Sections 1
Apartment Sections 1
